Besterdring 39

Besterdring 39

TILBURG

verkocht

Ook jouw woning succesvol verkopen? Neem dan contactmet ons op

Gratis waardebepaling

Omschrijving

Besterdring 39, 5014 HG Tilburg

Instapklaar appartement met tuin in hartje Theresia, Tilburg

Ontdek dit fijne gelijkvloerse appartement, gelegen op de begane grond van een modern en goed onderhouden pand in de populaire wijk Theresia Oost. Met een royale tuin van circa 45m², energielabel A en een slimme indeling is dit de ideale woning voor starters, alleenstaanden of koppels die centraal willen wonen mét buitenruimte.

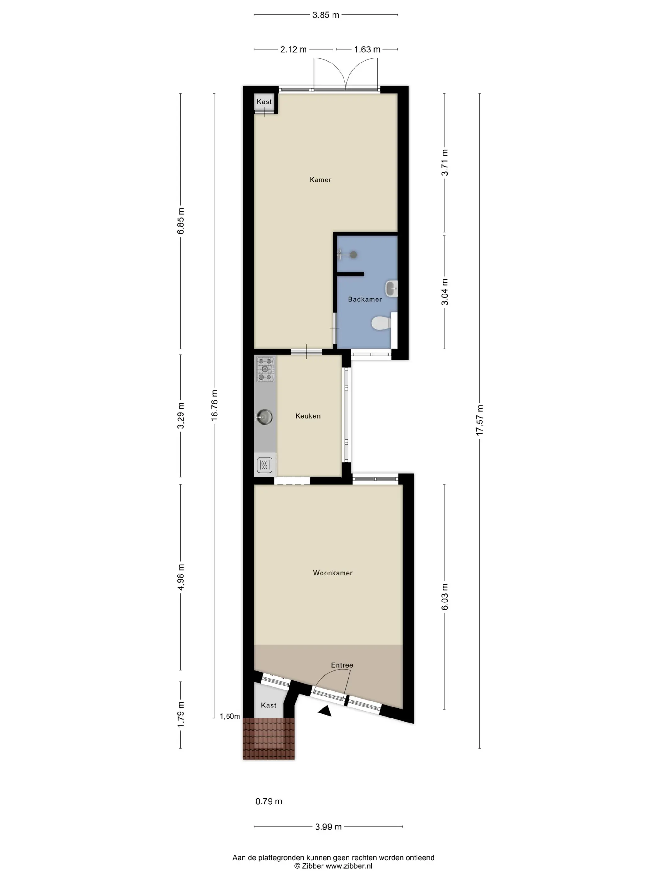
Indeling

Binnenkomst & woonkamer
Via de centrale entree op de begane grond bereik je het appartement. Bij binnenkomst stap je direct de woonkamer binnen, voorzien van een ingebouwde trappenkast – ideaal voor extra bergruimte. De woonkamer heeft een prettige sfeer en voelt ruim aan.

Keuken
Aansluitend vind je de half-open keuken, voorzien van diverse inbouwapparatuur, waardoor koken hier comfortabel en praktisch is. Denk aan een fornuis, afzuigkap, oven en koel-/vriescombinatie.

Slaapkamer & badkamer
Via de keuken bereik je de slaapkamer, die is uitgerust met openslaande deuren naar de tuin – perfect voor een frisse ochtendstart of om in de zomer de tuin echt bij je leefruimte te betrekken.
De badkamer is compact maar efficiënt ingedeeld met een inloopdouche, toilet en wastafel.

Berging
Daarnaast is er een aparte berging aanwezig, wat zorgt voor extra opbergruimte voor fietsen, gereedschap of seizoensspullen.

Buitenruimte

Een van de grootste pluspunten van dit appartement is de royale tuin van circa 45m². Deze zonnige buitenruimte biedt volop mogelijkheden om te genieten van het buitenleven midden in de stad.

Kenmerken:
-Woonoppervlakte: ca. 58m²
-Energielabel: A
-Volledig gerenoveerd 2003
-Voerverwarming
-Airco
-Tuin: ca. 45m²
-Slaapkamer met openslaande deuren naar de tuin
-Inbouwkeuken, nette badkamer en berging aanwezig
-Centrale ligging in de wijk Theresia, nabij stadscentrum en station

Locatie

De Besterdring is een bruisende straat op loopafstand van het centrum van Tilburg, met supermarkten, cafés, winkels en openbaar vervoer binnen handbereik. Ook de universiteit, treinstation en de uitvalswegen richting Eindhoven, Breda en ’s-Hertogenbosch zijn snel bereikbaar.

Ben jij op zoek naar een comfortabel, energiezuinig appartement met tuin in een levendige wijk? Dan is Besterdring 39 jouw kans. Maak snel een afspraak voor een bezichtiging!
Lees meer

Kenmerken

Overdracht

Status
verkocht
Aanvaarding
in overleg

VvE checklist

Inschrijving KVK
Ja
Jaarlijkse vergadering
Ja
Periodieke bijdrage
Ja (60,00 per maand)
Reservefonds aanwezig
Nee
Onderhoudsplan
Ja
Opstalverzekering
Ja

Bouw

Soort woning
appartement
Soort appartement
benedenwoning
Aantal woonlagen
3
Woonlaag
1
Bouwjaar
1906
Open portiek
nee
Onderhoud binnen
goed
Onderhoud buiten
goed

Energie

Energielabel
A

Oppervlakten en inhoud

Woonoppervlakte
58 m²
Bergruimte oppervlakte
10 m²

Indeling

Aantal kamers
2

Garage / Schuur / Berging

Garage
geen garage
Parkeergelegenheid
betaald parkeren

Foto's

Plattegronden

Locatie

Downloads

Vraag een bezichtiging aan of neem contact met ons op