CENTRAAL WONEN IN TILBURG!
De Koestraat 99 in Tilburg is een sfeervolle en karaktervolle woning op een rustige, geliefde locatie midden in de stad. Deze charmante woning biedt een unieke combinatie van comfort en stijl, met een warme uitstraling die je direct thuis doet voelen. Dankzij de prettig ingedeelde ruimtes is dit een plek waar modern woongemak en traditionele gezelligheid hand in hand gaan.
Daarnaast profiteer je hier van een ideale ligging: op loopafstand vind je tal van voorzieningen, zoals gezellige cafés, sfeervolle restaurants, winkels en het levendige centrum van Tilburg. Ook scholen en openbaar vervoer zijn dichtbij, waardoor de woning niet alleen perfect is voor wie graag de stad opzoekt, maar ook voor wie een praktische en goed bereikbare woonomgeving zoekt. Koestraat 99 biedt daarmee het beste van twee werelden – rust en charme, met de dynamiek van de stad binnen handbereik.
INDELING
Begane Grond
Je komt binnen in de hal hier bevindt zich de trapopgang naar de eerste verdieping. De ruime woonkamer heeft een weldadige lichtinval en doorgang naar de grote woonkeuken. De keuken is voorzien van gasfornuis met oven, RVS-afzuigkap, vaatwasser, spoelbak met reguliere kraan. Aan de achterzijde bevindt zich een bijkeuken met wasmachine-opstelplaats en tevens toegang tot de tuin en badkamer. De badkamer is voorzien van ligbad, douchecabine met hand- en regendouche, staand closet en twee wastafels.
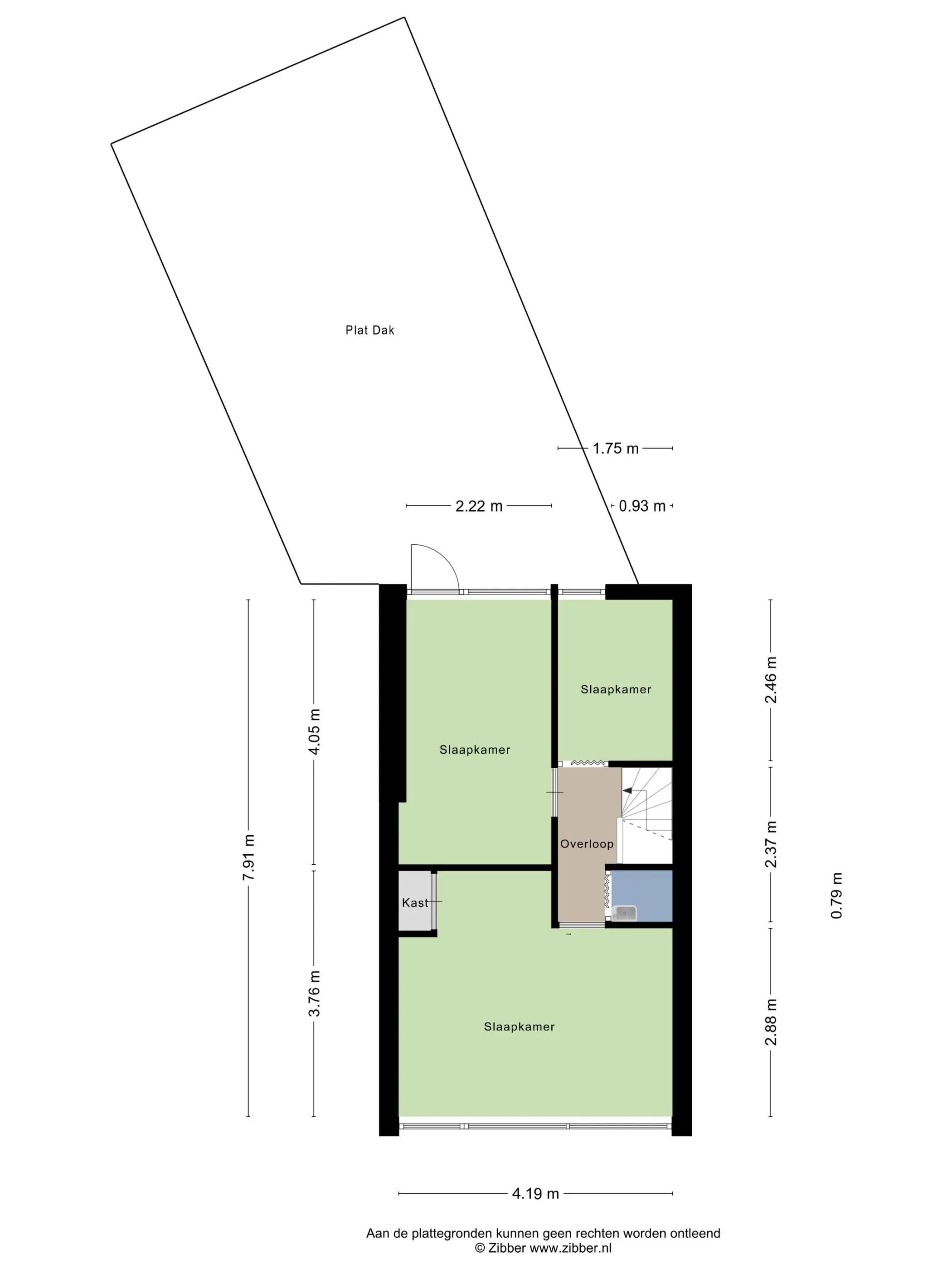
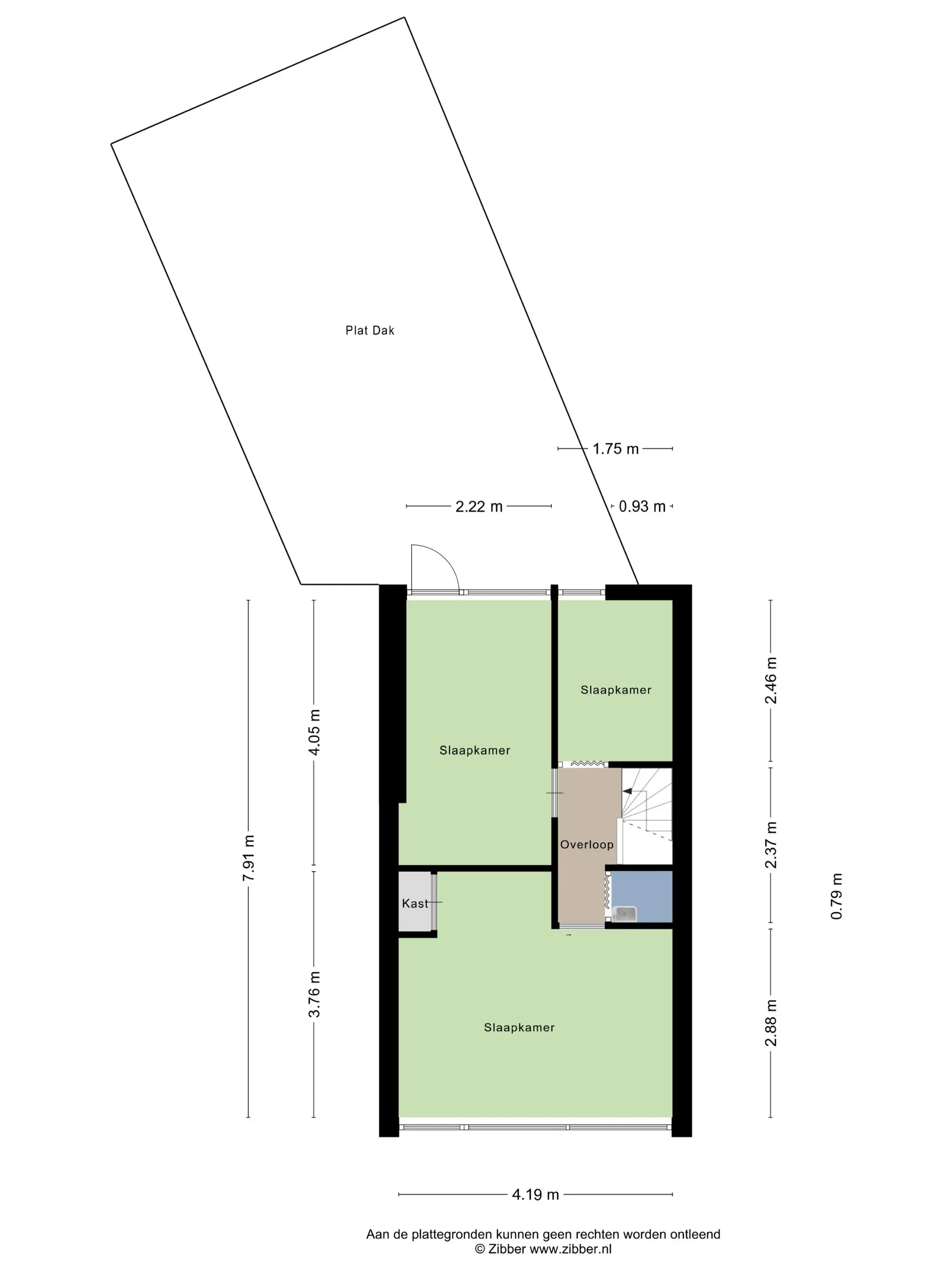
Eerste Verdieping
Op de eerste verdieping vinden we een drietal slaapkamers, berging onder de verdiepingsvloer en een wasmachinekast.
Buiten
Achtertuin op het westen met overkapping voorzien van een bar.
BIJZONDERHEDEN
- Praktische gezinswoning nabij het centrum
- Bouwjaar 1905
- Woonoppervlakte van ca. 102 m2
- Energielabel E
- Verwarming middels Centrale Verwarming (2024)
- Ligging in het centrum op loopafstand van diverse winkels, restaurants en scholen.
- Ligging t.o.v. openbaar vervoer zeer gunstig
- Oplevering: in overleg
BOD UITBRENGEN
Heb je de woning bezichtigd en wil je een bod uitbrengen? Via jouw persoonlijke online account kun je dit eenvoudig en veilig doen. Ons biedingsportaal helpt je stap voor stap bij het opstellen van een doordacht bod. Alleen de verkoper en RE/MAX Optimus Makelaars hebben inzicht in jouw bod; andere geïnteresseerden kunnen dit niet zien. Conform de wetgeving die geldt sinds 1 januari 2023 worden alle biedingen pas ná de definitieve verkoop inzichtelijk gemaakt voor de overige bieders.
VERKOOP VAN JE EIGEN WONING
Wil je een nieuw huis kopen, maar moet je je huidige woning nog verkopen? RE/MAX Optimus Makelaars komt graag vrijblijvend bij je langs voor een gratis waardebepaling. Tijdens een persoonlijk gesprek geven we je inzicht in de marktwaarde en vertellen we hoe wij je woning optimaal kunnen presenteren. Zo weet je precies waar je aan toe bent.
BELANGRIJKE INFORMATIE
NEN2580 Meetinstructie
Voor het bepalen van de gebruiksoppervlakte hanteren wij de NEN2580-meetinstructie. Deze richtlijn zorgt voor meer duidelijkheid en uniformiteit, maar kleine verschillen kunnen altijd ontstaan, bijvoorbeeld door interpretatie of afronding.
Koopovereenkomst pas geldig na ondertekening
Een mondeling akkoord tussen koper en verkoper is juridisch niet bindend. Pas wanneer beide partijen de koopovereenkomst hebben ondertekend, is er sprake van een rechtsgeldige koop. Dit is vastgelegd in artikel 7:2 van het Burgerlijk Wetboek. Een conceptovereenkomst of bevestiging per e-mail geldt dus niet als officieel contract.
Disclaimer
De informatie over deze woning is zorgvuldig samengesteld. Toch kan RE/MAX Optimus Makelaars b.v. geen aansprakelijkheid aanvaarden voor eventuele onjuistheden of onvolledigheden. De gegevens zijn bedoeld als uitnodiging tot het doen van een bod of het starten van onderhandelingen, en vormen geen bindend aanbod.